| |
 |
|
Protezioni a parete |
|
|
|
|
 |
|
|
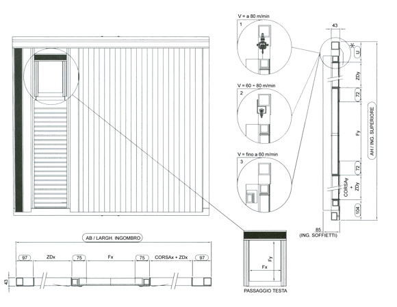
La Sefra Meccanica in collaborazione con la HEMA, leader della progettazione e realizzazioni di protezioni per macchine utensili, è in grado di realizzare i sistemi di protezione denominati CUBE, protezioni a parete.
Il sistema modulare realizzato riduce i tempi di costruzione delle protezioni per gli assi XYZ della macchina utensile dal momento che in un unico telaio vengono assemblati i sitemi a soffietto con lamele precaricate che proteggono gli assi menzionati.
Tutte le protezioni a lamelle sono libere di muoversi all'interno delle guide realizzate nel telaio conferendo al sistema ottime propietà di tenuta e una efficace sistema di protezione all'infiltrazione degli sfridi di lavorazione e ai liquidi di refrigerazione.
L'accurata ricerca tecnica ha potuto realizzare dei sistemi che si possono adattare perfettamente con le esigenze funzionali della macchina sulla quale andranno mantati.
Le velocità di scorrimento che possono essere raggiunte variano da un minimo di 60 m/min. a più di 80 m/min.
Su richiesta possono essere valutati e realizzati dei sistemi CUBE a disegno. |
|